P550 ให้เช่า อาคาร สำนักงานสร้างใหม่ มีลิฟท์โดยสาร ย่านพระราม9 ใกล้ห้างเดอะไนน์ เดอะ มอลล์ บางกะปิ
Quote from Naorin PL on 14/04/2025, 4:27 pmให้เช่า อาคาร สำนักงานสร้างใหม่ 5 ชั้น มีลิฟท์โดยสาร และลิฟท์จอดรถ ติดถนน2ด้าน ย่านพระราม9 ใกล้ห้างเดอะไนน์ เดอะ มอลล์ บางกะปิ มหาวิทยาลัยเกษมบัณฑิต และโรงพยาบาลสมิติเวช ศรีนครินทร์
ราคาเช่า 800,000 บาท/เดือน ประกัน 2 เดือน ล่วงหน้า 1 เดือน สัญญาขั้นต่ำ 3 ปี
ติดต่อ คุณช่อผกา 0616198565 LINE 0616198565
หากไม่รับสาย รบกวนขอความกรุณาลูกค้า @line ทิ้งรูปและข้อมูลไว้นะคะ
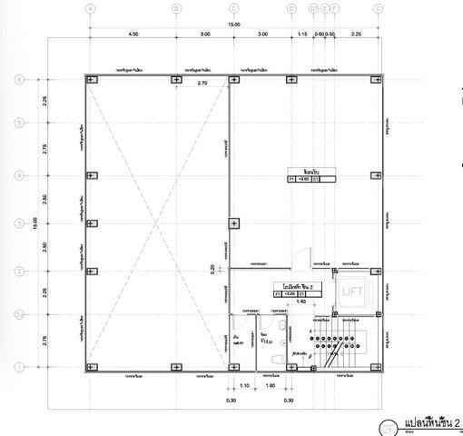
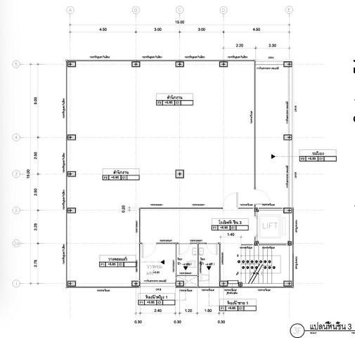
https://line.me/ti/p/zu0mm-ozFXเนื้อที่ 99 ตร.ว. พื้นที่ใช้สอยทั้งตึกประมาณ 1,500 ตรม
สร้างใหม่ 5ชั้น+ มีดาดฟ้า มีลิฟท์โดยสาร
มีลิฟท์จอดรถ
ห้องน้ำแยกหญิงชาย
ตั้งอยู่ทำเลดีการเดินทางสะดวกเข้าออกได้หลายเส้นทาง อาทิ ถนนพระราม 9 ถนนพัฒนาการ และถนนศรีครินทร์
รายล้อมด้วยแหล่งอำนวยความสะดวก อาทิ ห้างเดอะไนน์พระราม9 ,เดอะ มอลล์ บางกะปิ ,มหาวิทยาลัยเกษมบัณฑิต และโรงพยาบาลสมิติเวช ศรีนครินทร์ที่ตั้ง ถนนพระราม9 แขวงสวนหลวง เขตสวนหลวง กรุงเทพมหานคร 10250
ติดต่อ คุณช่อผกา 0616198565 LINE 0616198565
หากไม่รับสาย รบกวนขอความกรุณาลูกค้า @line ทิ้งรูปและข้อมูลไว้นะคะ
PL. Real Estate Broker
http://www.kaibaanteedin.com
บริการรับฝากขาย คอนโด บ้าน ที่ดิน อสังหาริมทรัพย์ทุกชนิด RPJ481 พี่เจี้ยบ
ให้เช่า อาคาร สำนักงานสร้างใหม่ 5 ชั้น มีลิฟท์โดยสาร และลิฟท์จอดรถ ติดถนน2ด้าน ย่านพระราม9 ใกล้ห้างเดอะไนน์ เดอะ มอลล์ บางกะปิ มหาวิทยาลัยเกษมบัณฑิต และโรงพยาบาลสมิติเวช ศรีนครินทร์
ราคาเช่า 800,000 บาท/เดือน ประกัน 2 เดือน ล่วงหน้า 1 เดือน สัญญาขั้นต่ำ 3 ปี
ติดต่อ คุณช่อผกา 0616198565 LINE 0616198565
หากไม่รับสาย รบกวนขอความกรุณาลูกค้า @line ทิ้งรูปและข้อมูลไว้นะคะ
https://line.me/ti/p/zu0mm-ozFX
เนื้อที่ 99 ตร.ว. พื้นที่ใช้สอยทั้งตึกประมาณ 1,500 ตรม
สร้างใหม่ 5ชั้น+ มีดาดฟ้า มีลิฟท์โดยสาร
มีลิฟท์จอดรถ
ห้องน้ำแยกหญิงชาย
ตั้งอยู่ทำเลดีการเดินทางสะดวกเข้าออกได้หลายเส้นทาง อาทิ ถนนพระราม 9 ถนนพัฒนาการ และถนนศรีครินทร์
รายล้อมด้วยแหล่งอำนวยความสะดวก อาทิ ห้างเดอะไนน์พระราม9 ,เดอะ มอลล์ บางกะปิ ,มหาวิทยาลัยเกษมบัณฑิต และโรงพยาบาลสมิติเวช ศรีนครินทร์
ที่ตั้ง ถนนพระราม9 แขวงสวนหลวง เขตสวนหลวง กรุงเทพมหานคร 10250
ติดต่อ คุณช่อผกา 0616198565 LINE 0616198565
หากไม่รับสาย รบกวนขอความกรุณาลูกค้า @line ทิ้งรูปและข้อมูลไว้นะคะ
PL. Real Estate Broker
http://www.kaibaanteedin.com
บริการรับฝากขาย คอนโด บ้าน ที่ดิน อสังหาริมทรัพย์ทุกชนิด RPJ481 พี่เจี้ยบ





